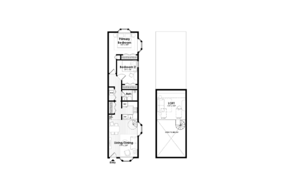
B01

2 bed1 bath828 sq. ft.

Only 2 left!

Starting at $2,785

Floorplans are artist’s rendering. All dimensions are approximate. Actual product and specifications may vary in dimension or detail. Not all features are available in every rental home. Prices and availability are subject to change. Please see a representative for details.