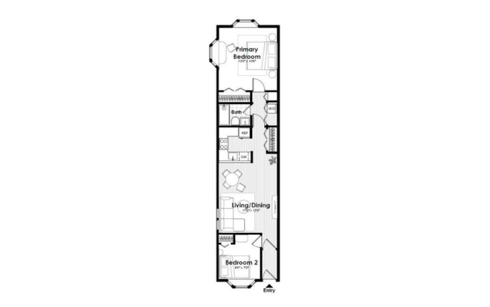
B02

2 bed1 bath934 sq. ft.

Only 1 left!

Starting at $3,336
B02 - 2 bedroom floorplan layout with 1 bathroom and 934 square feet

Floorplans are artist’s rendering. All dimensions are approximate. Actual product and specifications may vary in dimension or detail. Not all features are available in every rental home. Prices and availability are subject to change. Please see a representative for details.